Cabinet Design
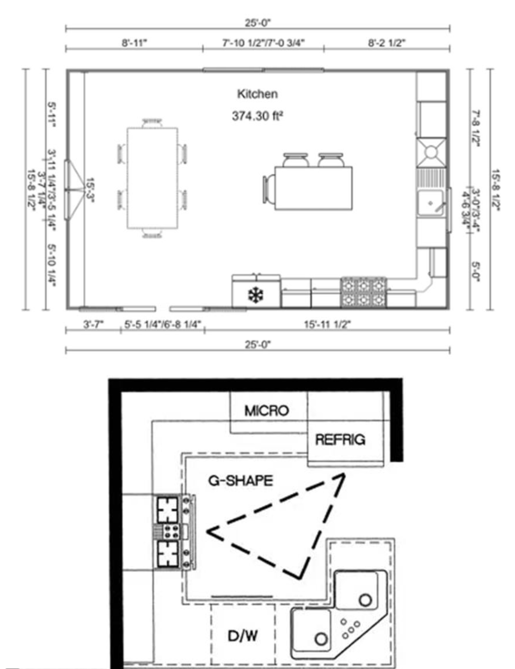
Room dimensions
Sometimes it can be helpful to start with a rough sketch outline of your kitchen. Begin by measuring the length, width, and height of your space. Measure the full length of each wall corner to corner, as well as floor to ceiling. You’ll also want to note entryways, doors (swing direction), windows, and soffits, and include measurements.
Existing fixtures
It’s important you don’t forget to measure features of your space that are going to be staying, this will ensure your new project will fit in seamlessly with your existing space. Measure the size and location of air vents and outlets, note the positions of water pipes, and measure the locations and dimensions of light fixtures, cabinetry, and appliances that are staying.
Layout considerations
- Kitchen work triangle: Consider the "work triangle" formed by the refrigerator, sink, and stove for efficient workflow.
- Accessibility: Ensure adequate space for movement and access to key areas.
- Vertical storage: Plan for upper and lower cabinets to maximize storage space.
Questions?


